$1,288,000
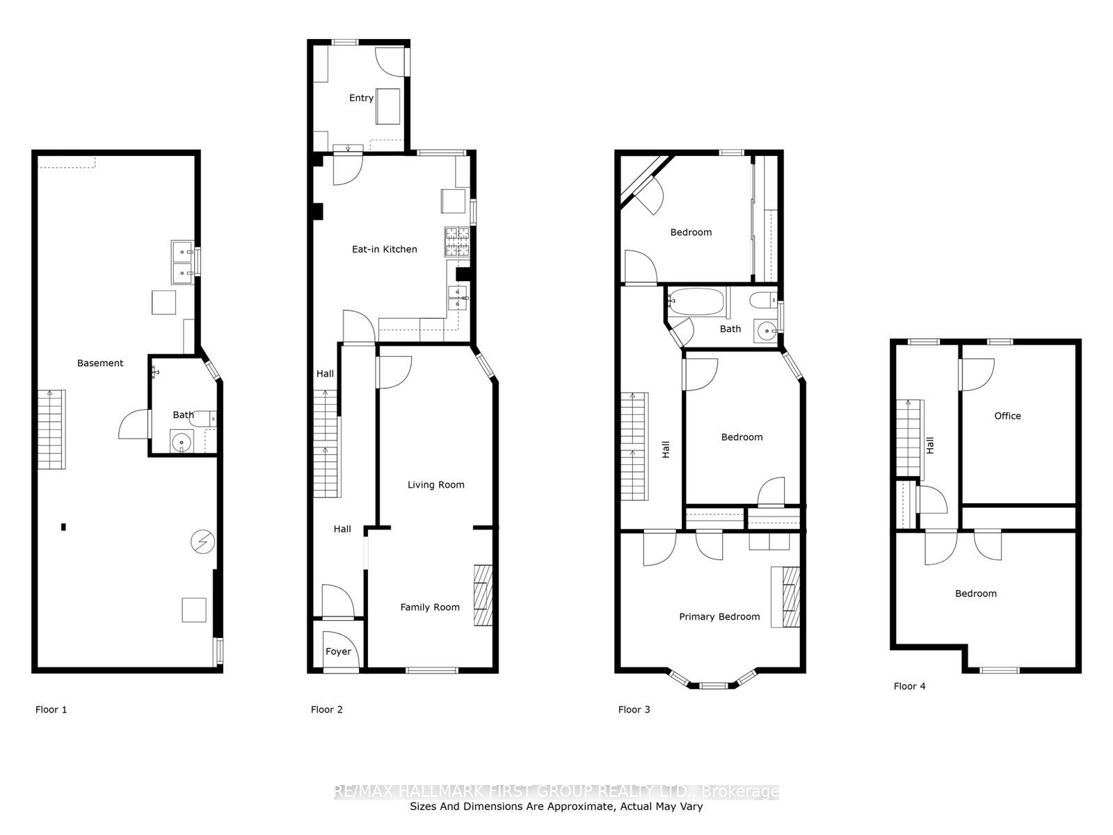
176 Langley Avenue
Sold
More information
Features & amenities
Additional details
- MLS® # E11978393
- Type Residential
- Subtype Semi-Detached
Listing is presented by
The McLean Group Real Estate
RE/MAX Hallmark First Group Realty Ltd.